












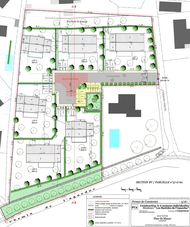
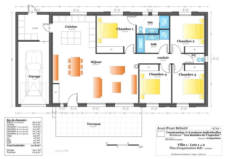
Plan de masse
Qu'est ce que la VEFA ?
La Vente en l’État Futur d’Achèvement (ou achat sur plan) est un mode d’acquisition où l’acheteur devient propriétaire au fur et à mesure de la construction. En clair, vous achetez un logement neuf, encore en construction (ou pas encore démarré), et vous en devenez pleinement propriétaire à la livraison.
🧱 Le principe
• Le promoteur vend un bien qui sera construit selon un plan, un descriptif et un prix convenus à l’avance.
• L’acheteur signe un contrat de réservation, puis un acte de vente notarié.
• Les paiements se font progressivement, en fonction de l’avancement du chantier (et toujours encadrés par la loi).
💶 Le paiement en VEFA (stades d’avancement)
Les appels de fonds sont strictement réglementés :
• 5 % à la signature du contrat de réservation (ou dépôt de garantie chez le notaire)
• 35 % maximum à l’achèvement des fondations
• 70 % à la mise hors d’eau (toiture posée)
• 95 % à l’achèvement des travaux
• Les 5 % restants à la livraison, après vérification du bien
👉 Cela permet à l’acheteur de payer au fur et à mesure et de sécuriser son investissement.
🛡 Les garanties incluses
L’un des grands avantages de la VEFA, ce sont les nombreuses protections légales :
1. Garantie financière d’achèvement (GFA).
Elle garantit à l’acheteur que le logement sera terminé, même si le promoteur rencontre un problème.
2. Garantie de parfait achèvement
Le promoteur doit corriger tous les défauts signalés dans l’année qui suit la livraison.
3. Garantie biennale (ou de bon fonctionnement)
Couvre les équipements (volets, chauffe-eau, interphone, etc.) pendant 2 ans.
4. Garantie décennale
Couvre le gros oeuvre et les dommages compromettant la solidité du bâtiment pendant 10 ans.
🧾 Les avantages pour l’acquéreur
• Frais de notaire réduits (environ 2 à 3 % au lieu de 7 à 8 % dans l’ancien).
• Logement conforme aux dernières normes (thermiques, phoniques,environnementales).
• Personnalisation possible (choix des matériaux, finitions selon le stade d’avancement).
• Économies d’énergie et peu d’entretien les premières années.
• Exonération de taxe foncière partielle pendant 2 ans dans certaines communes.
📆 Le déroulé d’un achat en VEFA
1. Réservation du lot avec dépôt de garantie.
2. Signature de l’acte de vente chez le notaire (environ 2 à 3 mois plus tard).
3. Construction et appels de fonds successifs selon l’avancement.
4. Livraison du logement avec remise des clés et procès-verbal de réception.










